| 価格 | 2,798万円 ![]() |
||||
|---|---|---|---|---|---|
| 所在地 | 栃木県栃木市大平町富田
この地域周辺の物件を見る |
土地面積 | 154.7m² (46.8坪) | 建物面積 | 107.25u |
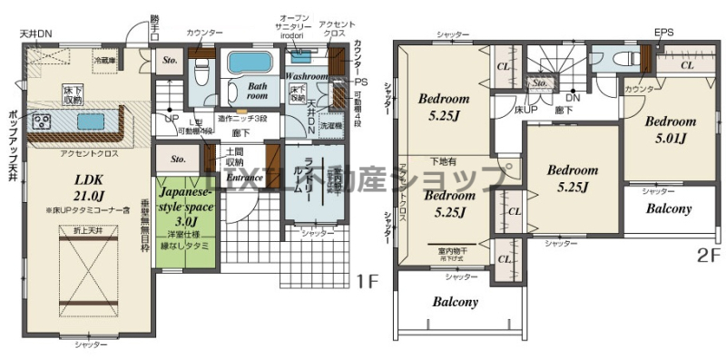
| 築年月 | 2026年6月築 | 間取り | 3LDK (LDK21/洋室10.5/洋室5.2/洋室5/その他3) | ||
| 交通 |
東武日光線 新大平下 徒歩9分
JR両毛線 大平下 徒歩21分 |
||||
0120-008-858
0120-015-688
・「ホームページを見た」とお伝え下さい
・お問い合わせ番号をお伝えください
【RHS-163746】
| 特徴 |
|
|---|---|
| セールスコメント | ・地盤も安心。基礎着工前に地盤調査会社による地盤調査を行い、必要に応じて地盤補強を行い不同沈下しない様対策をしております。 ・「鉄筋入りコンクリートベタ基礎」、不動沈下に対する耐久性や耐震性が向上 ・サビやシロアリを寄せ付けない。建物の床を支える支持材に鋼製の床束を採用 ・定期点検と35年までに必要な保守修繕を行うことで保証を継続可 ※小中学校につきましては、ご自身で該当の自治体に確認をお願い致します。 |
| 採光面 | 南 | 構造/階数 | 木造/地上2階建 |
|---|---|---|---|
| 建ぺい率 | 60(%) | 容積率 | 200(%) |
| 駐車場 | 有 | 現況/引渡し | -/2026年7月下旬 |
| 土地権利 | 所有権 | 私道負担面積 | - |
| 接道状況 | 接道: 南 公道 道路幅: 6m | 用途地域 |
第一種中高層住居専用地域
|
| セットバック | なし | 法令上の制限 | - |
| 地目 | 宅地 | 地勢 | |
| 建築確認番号 | 25UDI1W建11943 | 都市計画 | 市街化区域 |
| 取引態様 | 仲介 | ||
| 情報更新日 | 2026年03月08日 | 次回更新日 | 2026年03月22日 |
| 小学校区 | 栃木市立大平中央小学校 (栃木県栃木市) この学区の他の物件を見る |
中学校区 | 大平南中学校 (栃木県栃木市) この学区の他の物件を見る |
|---|
0120-008-858
0120-015-688
・「ホームページを見た」とお伝え下さい
・お問い合わせ番号をお伝えください
【RHS-163746】
| 価格 | 万円 | ||
|---|---|---|---|
| 年利率 | % |
||
| ボーナス払い | 返済年数 | ||
| 頭金 | 直接入力する | 万円 | |

毎月のご返済額 |
ボーナス(×年2回) |
物件価格2,798万円 |
0120-008-858
0120-015-688
・「ホームページを見た」とお伝え下さい
・お問い合わせ番号をお伝えください
【RHS-163746】


0120-008-858
宇都宮東店(平成通り沿い)0120-015-688
◆駐車場敷地内4台駐車可能 ◆近隣には商業施設多数で毎日の生活が快適 ◆長期優良住宅 ◆安心の住宅性能評価 ダブル取得 ◆耐震等級3 ◆土地建物込の価格 ◆お車のおまとめなど住宅ローン相談無料受付中!